-
-
-
-
tagasi tulemuste juurde
1/780
Ida-Viru maakond, Kohtla-Järve linn, Järve linnaosa, Spordi tn 2
Eesti, Ida-Viru maakond

Küsi maaklerilt lisainfot

maakler, Eesti Kinnisvaramaaklerite Koja liige KMR 47980, City24 Aasta Täht

Lisainfo

Mööbel, elekter, eterniit, kivi, wc ja vannituba eraldi, loomulik ventilatsioon, paigaldatud.

Kirjeldus

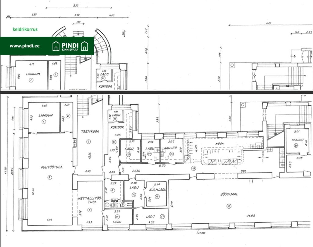
Müüa mitmeotstarbeline kinnisvara Kohtla-Järve Järve linnaosas, aadressil Spordi tn 2. Tegemist on suure potentsiaaliga objektiga, mis sobib hästi spordi-, teenindus- või ettevõtlusalaseks kasutuseks.

Objekti eelised:
* hea ligipääs ja asukoht Järve linnaosas, linna läbiva peatänava ääres
* hoones on tegutsenud mitmed spordiklubid ja organisatsioonid
* piirkonnas asuvad muuhulgas ka jäähall, staadion, park ja kultuurikeskus
* ühistranspordi peatus on lähedal

Asukoht:
Kinnistu paikneb linnapargi ääres ja kesklinna läheduses.

KOMMUNIKATSIOONID:
* elekter 160A (3 faasi)
* vesi/kanalisatsioon tsentraalne
* kaugküte (ainult soojasõlmes, ülejäänud hoone on kütteta, radiaatorid-torustik katki)
* signalisatsioon
Energiamärgist väljastatud ei ole.

KINNISTU JA HOONE SEISUKORD, PUUDUSED:
Hoone on muinsuskaitse all (mälestis nr 13886, https://register.muinas.ee/public.php?menuID=monument&action=view&id=13886).
Suurimaid ja esinduslikumaid 1930. a-il ehitatud algkoolihooneid Eesti töölisasulais.
Hoone kuulub A kategooriasse, hoone välisilmet ja mahtu ei tohi muuta.

Hoone on seisud kasutuseta üle 10 aasta ja on väga halvas seisukorras, eterniitkatus laseb kohati läbi, torniosas katus on väga halvas seisukorras, on suured niiskuskahjustused.
Palju radiaatoreid puudu või külmunud katki.
Hoones esineb hallitust ja niiskuskahjustust. Kohati fassaad halvas seisukorras, krohv/telliskivid lahtised. Esineb lõhutud aknaavasid. Hoones on palju vana mööblit.
Hoones on olnud tulekahju ja osa betoonkonstruktsioonist on kahjustada saanud, lagedel krohv pudeneb. Teostatud remonttööde käigus ei ole jälgitud muinsuskaitse nõudeid.
Talvel tuleb soojasõlmes kütet sees hoida, et trass ei külmuks ära. Hoonesisesed kommunikatsioonid kõik amortiseerunud. ATS süsteem ei ole töökorras.

Antud kinnistuga on seotud maagaasi Jaotustorustik Kohtla-Järve B3 (kood 220591727) ja Kohtla-Järve Linn Rahvaparki (kood 220287733).

OLULINE LISAINFO:
– Vara müüjaks on Riigi Kinnisvara AS.
– Müügihind ei sisalda ega lisandu käibemaksu.
– Mitme ostuhuvilise ilmnemisel viiakse läbi kirjalik enampakkumine.
– Kõik tehinguga seotud kulud (notaritasu ja riigilõivu) maksab ostja.
– Hoones olev vallasvara, prügi ja muud esemed jäävad sisse. Müüjal ei ole kohustust neid ära vedada ega utiliseerida.
– Riigi Kinnisvara Aktsiaselts (Müüja) müüb lepingu eseme seisuskorras „nagu on“ („as is“). Müüja ei vastuta lepingu eseme puuduste eest, millest ostja teadis või pidi teadma müügilepingu sõlmimise ajal.
– Kinnistu sihtostarve on ühiskondlike ehitiste maa ning sihtotstarve on ostjal vajalik kohalikus omavalitsuses ära muuta.
– Müüjal on õigus avaldada ostja nimi ja tehingu summa.
– Maakleri ja müüja vahel kokku lepitud müügiprotsess on leitav siit: https://myyk.rkas.ee/et/kvb

– – –

PANGA SOODUSTUSED Teeme koostööd kõikide suuremate pankadega! Meie kliendina teenindatakse Sind eelisjärjekorras ning kodulaenu lepingutasule kehtivad soodustused.

VAHENDAMINE Pindi Kinnisvara on pakkunud esindusteenust kinnisvaraturul alates 1995. aastast. Suurima Eesti kinnisvarabüroona oleme esindatud 18 linnas.

OSTUESINDUS Otsid endale kinnisvara? Muudame Sinu otsinguprotsessi sujuvaks ning meeldivaks kogemuseks. Meil on suur kliendibaas ja südikad maaklerid.

HINDAMINE Meie 30 kutselise hindaja eksperthinnanguid aktsepteerivad kõik finantsasutused! Hindame nii elukondlikku kui ärikinnisvara.

HALDAMINE Pakume kinnisvara haldamisel täislahendust: raamatupidamist, tehnosüsteemide hooldust, heakorratöid kinnistul ja hoones, ehituse- ja renoveerimistööde korraldamist, energia-, vee ja kommunikatsiooniteenuste vahendamist ja eripuhastusteenuseid.

JURIIDILINE NÕUSTAMINE Pindi Kinnisvara tütarettevõtte Realia Õigusbüroo spetsialistid on Sulle abiks kõigis kinnisvara puudutavates juriidilistes küsimustes.

Täpsemalt loe ja võta ühendust: https://www.pindi.ee/ või konsulteeri oma maakleriga.

Küsi maaklerilt lisainfot

maakler, Eesti Kinnisvaramaaklerite Koja liige KMR 47980, City24 Aasta Täht