-
-
-
-
tagasi tulemuste juurde
1/864
Harju maakond, Tallinna linn, Kesklinna linnaosa, Madalmaa 1
Eesti, Harju maakond

Küsi maaklerilt lisainfot

projektijuht, kutseline vanemmaakler tase 6 KKM 186840

Lisainfo

Avatud köök, pakettaknad, panipaik, lift, kinnine hoov, internet, rullmaterjal, vann, soojustagastusega ventilatsioon.

Kirjeldus

Eelregistreerimisega kliendipäev toimub 20.11.2025 kell 17.00-18.00 Madalmaa 1-1 korteris.

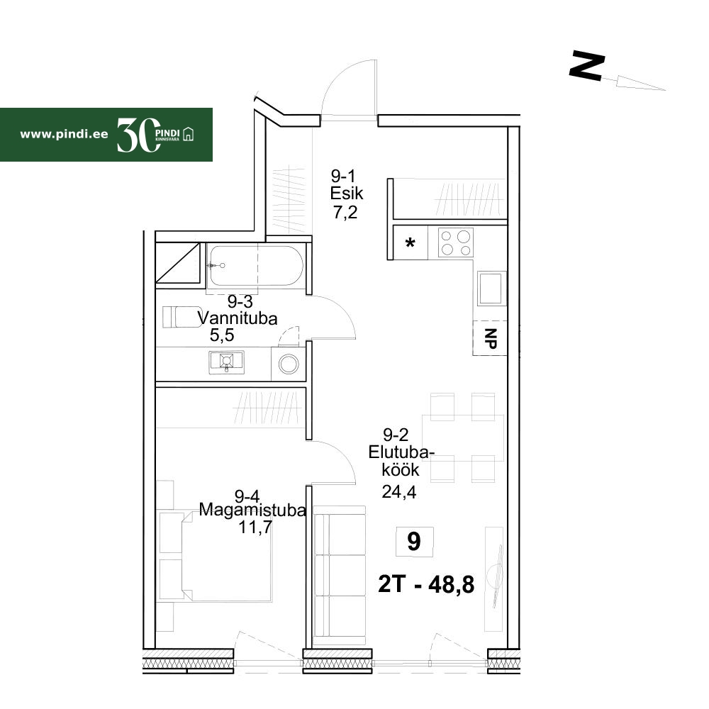
Müüa päikesepoolne 2-toaline korter uues majas Sadama piirkonnas!

Korteris on hea planeering – avar garderoob esikus, avatud köögiga elutuba, magamistuba ning ruumikas vannituba. Aknad avanevad vaiksesse sisehoovi.

Korteri siseviimistlus on kaasaegne ja kvaliteetne.
B-energiaklassiga hoone on varustatud soojustagastusega sundventilatsiooni ning vesipõrandaküttega – radiaatorivaba lahendus tagab ühtlase soojuse ja madalad küttekulud ka külmal ajal.

Lisaväärtused:
• Hind sisaldab panipaika
• Parkimiskoht saadaval lisatasu eest
• Energiasäästlik ja kvaliteetne hoone
• Kaasaegne ning rahulik elukeskkond

Asukoht:
Sadama piirkond pakub ideaalse kombinatsiooni kesklinna mugavustest ja mereäärsest õhustikust. Jalutuskäigu kaugusel on Reidi tee promenaad, rattateed, pargi- ja puhkealad.

Kui hindad modernset elukeskkonda, kus kõik vajalik on läheduses – siis see korter võib olla just sinu uus kodu!

——————————————————————————————————————————————————-

PANGA SOODUSTUSED Teeme koostööd kõikide suuremate pankadega! Meie kliendina teenindatakse Sind eelisjärjekorras ning kodulaenu lepingutasule kehtivad soodustused.

VAHENDAMINE Pindi Kinnisvara on pakkunud esindusteenust kinnisvaraturul alates 1995. aastast. Suurima Eesti kinnisvarabüroona oleme esindatud 18 linnas.

OSTUESINDUS Otsid endale kinnisvara? Muudame Sinu otsinguprotsessi sujuvaks ning meeldivaks kogemuseks. Meil on suur kliendibaas ja südikad maaklerid.

HINDAMINE Meie 30 kutselise hindaja eksperthinnanguid aktsepteerivad kõik finantsasutused! Hindame nii elukondlikku kui ärikinnisvara.

HALDAMINE Pakume kinnisvara haldamisel täislahendust: raamatupidamist, tehnosüsteemide hooldust, heakorratöid kinnistul ja hoones, ehituse- ja renoveerimistööde korraldamist, energia-, vee ja kommunikatsiooniteenuste vahendamist ja eripuhastusteenuseid.

JURIIDILINE NÕUSTAMINE Pindi Kinnisvara tütarettevõtte Realia Õigusbüroo spetsialistid on Sulle abiks kõigis kinnisvara puudutavates juriidilistes küsimustes.

Täpsemalt loe ja võta ühendust: https://www.pindi.ee/ või konsulteeri oma maakleriga.

Küsi maaklerilt lisainfot

projektijuht, kutseline vanemmaakler tase 6 KKM 186840